nieruchomości
Wypełnij formularz i kliknij SZUKAJ poniżej

Numer oferty
 
 
Lokalizacja
Ulica
Cena
Powierzchnia
Liczba pokoi
oferty specjalne

Notes » Zgłoś ofertę » Kalkulator opłat » Partnerzy » Kontakt »

Szczegóły Oferty

mieszkanie ( sprzedaż )

472/3949/OMS

Numer:
472/3949/OMS
Miasto:
KRAKÓW, STARE MIASTO
Ulica:
Tarłowska
Cena:
2 100 000 PLN kalkulator
Cena za mkw:
20 388,35 PLN mkw
Powierzchnia:
103.00 m2
Liczba pokoi:
3
Piętro:
2
Liczba pięter:
2
Rok budowy:
1900
Umeblowane:
TAK
Balkon:
TAK
Piwnica:
TAK
Komórka:
TAK

Opis

Wyjątkowe, przestronne mieszkanie położone u podnóża Wawelu, przy zacisznej ulicy Tarłowskiej, znajdującej się pomiędzy Placem na Groblach i ulicą Zwierzyniecką, dzielnica Stare Miasto.
Kamienica w której usytuowane jest mieszkanie pochodzi z przełomu XIX i XX wieku, jest zadbana, odremontowana, bardzo kameralna.
Elewacja całkowicie odnowiona, klatka zabytkowa z ciekawymi detalami.
Tylko dwa mieszkania na piętrze.
Lokal znajduje się na II i ostatnim piętrze w głównej klatce schodowej.
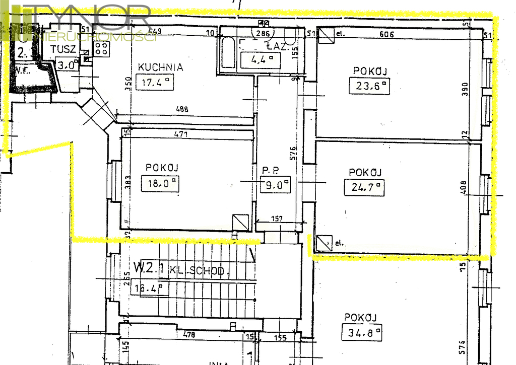
Powierzchnia mieszkania wynosi 103,20 m2, składa się z 3 niezależnych pokoi o powierzchniach 25, 24 i 18 m2, osobnej kuchni o pow. 17,4 m2, łazienki, przedpokoju, schowka, balkonu z którego jest wejście do pomieszczenia gospodarczego oraz przejście na boczną klatkę. Do lokalu przynależy duża piwnica o powierzchni 21 m2, z oknem.
Lokal ma solidne, nowe okna, które są wysokie, dzięki czemu wnętrza są bardzo doświetlone.
Na podłogach oryginalny parkiet, w pokojach piece kaflowe z wkładami elektrycznymi.
Ogrzewanie elektryczne, z możliwością przerobienia na gazowe, w lokalu jest już gaz, podpięty do kuchni i pieca na ciepłą wodę.
Wysokość czynszu administracyjnego wynosi 850 zł.

Ulica Tarłowska położona w najbardziej prestiżowej części dzielnicy Stare Miasto, tuż przy Zamku Królewskim na Wawelu, łączy w sobie ciszę bocznej uliczki z bliskością najważniejszych punktów Krakowa - tych historycznych, kulturalnych i codziennych.
Znajduje się zaledwie kilka kroków od tętniącego życiem Rynku Głównego, sama ulica jednak jest niesamowicie spokojna i pełna zieleni. Wystarczy przejść 200 metrów, by znaleźć się na Bulwarach Wiślanych, idealnych do spacerów, joggingu czy odpoczynku z widokiem na rzekę i Wawel.
W promieniu kilku minut spacerem znajdują się
- najlepsze krakowskie restauracje i kawiarnie od eleganckich lokali po kameralne knajpki z duszą - centra kultury i sztuki - filharmonia, teatry, galerie sztuki, muzea
- uczelnie wyższe - Uniwersytet Jagielloński, ASP, Akademia Muzyczna
- centra konferencyjne, biura, ambasady - prestiżowa okolica idealna także do pracy i spotkań biznesowych
Doskonała komunikacja i infrastruktura, okolica jest dobrze skomunikowana przystanki tramwajowe i autobusowe w zasięgu kilku minut. Łatwy dojazd do Dworca Głównego i lotniska.
Strefa ograniczonego ruchu (strefa A), co zapewnia spokój i minimalny ruch samochodowy
W pobliżu znajdują się także sklepy, piekarnie, apteki, szkoły i przychodnie.

To idealne miejsce dla osób ceniących styl, spokój i wysoką jakość życia inwestorów poszukujących prestiżowej lokalizacji pod wynajem miłośników historii, sztuki i miejskiego życia w eleganckim wydaniu.


Maria Tynor
Nr licencji pośrednika odpowiedzialnego zawodowo: 15647
tel: +48512055117
email: biuro@tynor-nieruchomosci.pl

 
TYNOR Nieruchomości
NIP 6751249542
REGON 120695704 Kraków
tel.: +48 512055117
email: biuro@tynor-nieruchomosci.pl
Wyślij ofertę na e-mail

Jeśli chcesz dostać tą ofertę w e-mailu,
podaj swój adres.
 
 

Prześlij wiadomość do naszej firmy
Imię i Nazwisko 
Telefon 
E-mail 
Treść zapytania 

Wyrażam zgodę na przetwarzanie moich danych osobowych przez firmę TYNOR Nieruchomości dla celów związanych z działalnością pośrednictwa w obrocie nieruchomościami, jednocześnie potwierdzam, iż zostałem poinformowany o tym, iż będę posiadać dostęp do treści swoich danych do ich edycji lub usunięcia.